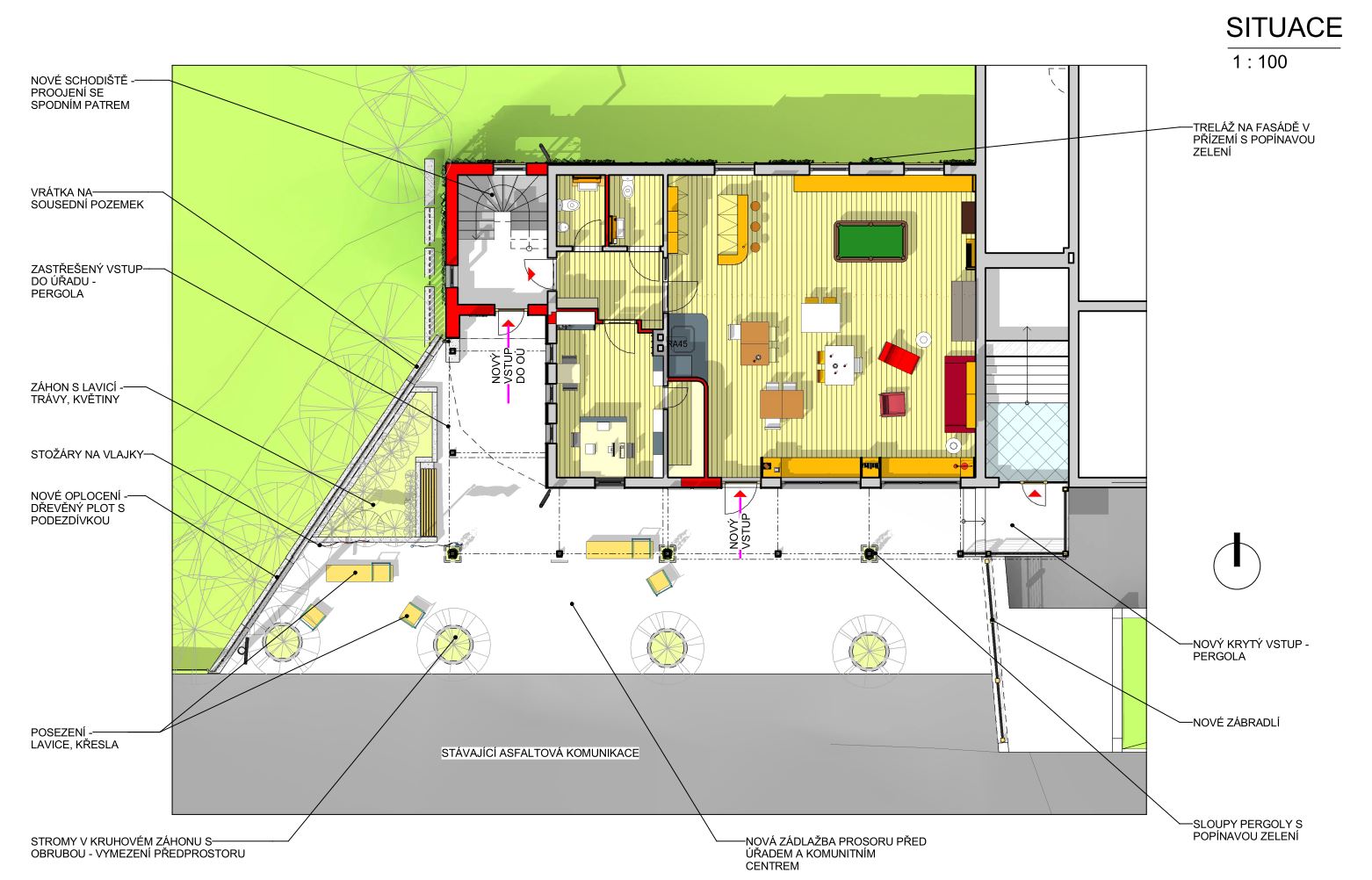
SITUACE